Lowndes Area Knowledge Exchange (LAKE)
Conceptual Site Plan
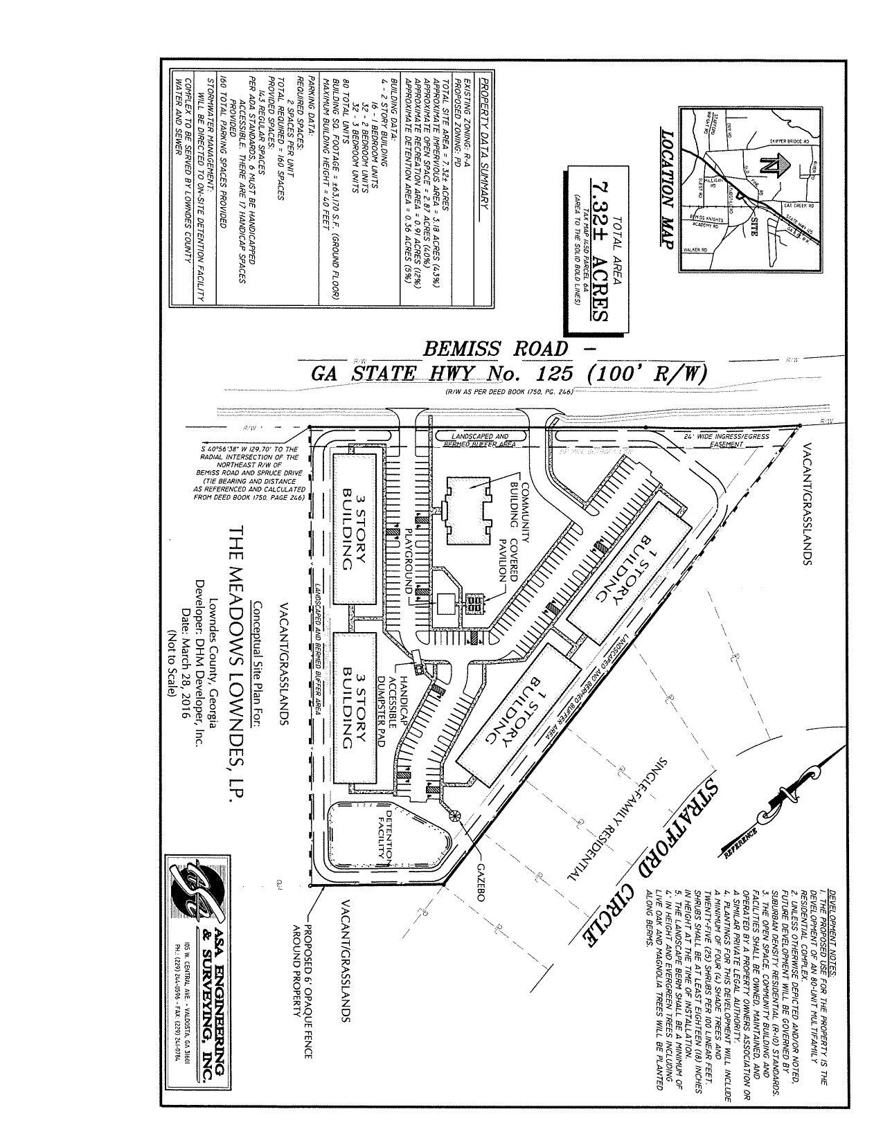
REZ-2022-01 Hamilton Green Townhomes, Bemiss Rd., 045D 006A, 7.32ac, P-D to P-D Amendment, County Utilities
Board's Pleasure should be Deny: Miller Bridge Road rezoning @ LCC
7 February 2022
smaller
PDF
Photographs
by
Lowndes Area Knowledge Exchange (LAKE)
,
licensed by a
Creative Commons Attribution-Share Alike 3.0 U.S. License
.
Lowndes Area Knowledge Exchange (LAKE)