Lowndes Area Knowledge Exchange (LAKE)
Site Plan
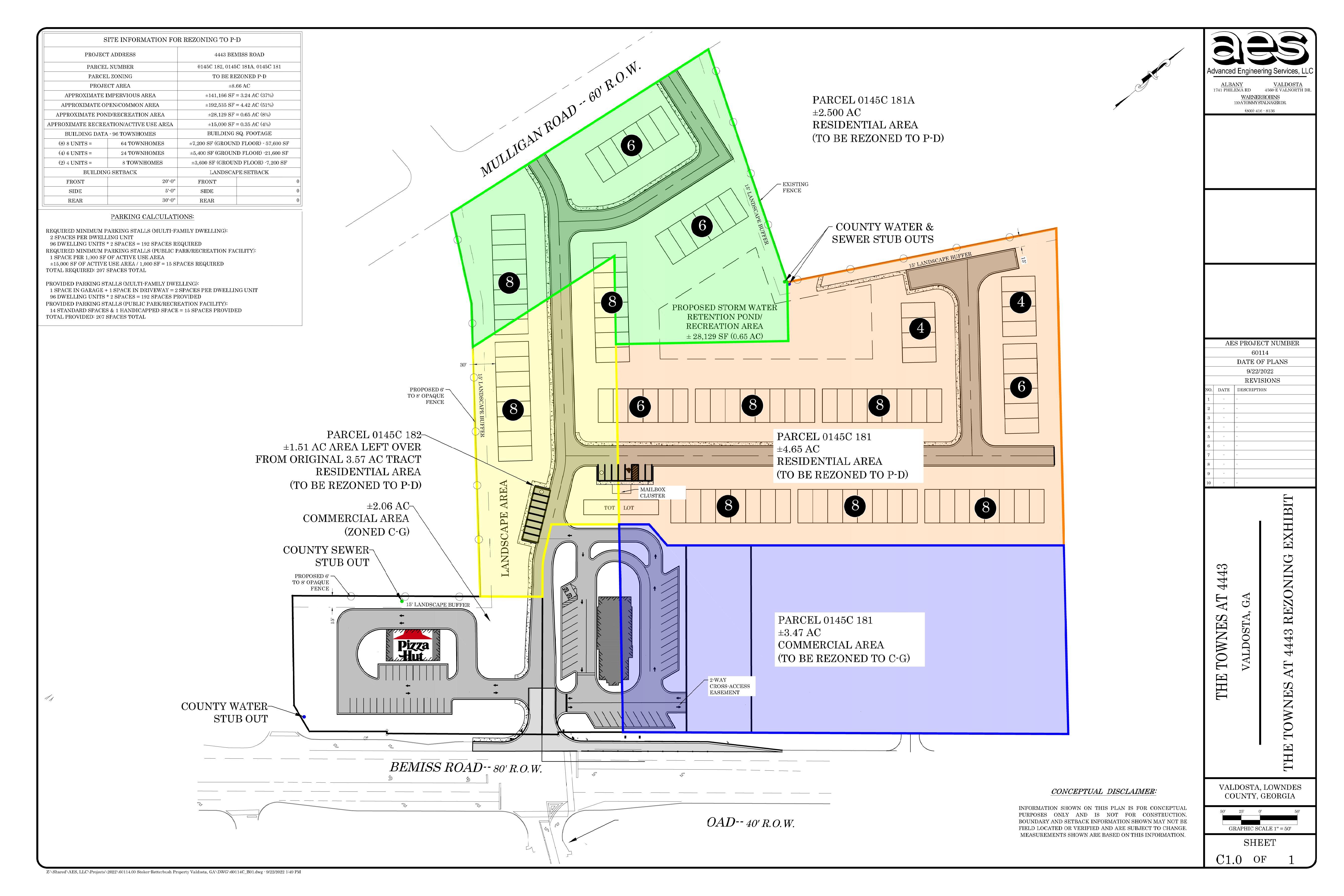
REZ-2022-16 The Townes at 4443 Bemiss, ~14.1 acres, from C-G & R-A to P-D & C-G, County Utilities
Two rezonings, Pictometry, Lift Station quit claim, Val Del Estates subdivision infrastructure @ LCC
10 October 2022
smaller
PDF
Photographs
by
Lowndes Area Knowledge Exchange (LAKE)
,
licensed by a
Creative Commons Attribution-Share Alike 3.0 U.S. License
.
Lowndes Area Knowledge Exchange (LAKE)