Lowndes Area Knowledge Exchange (LAKE)

[prev][index][next] [index to photographs]

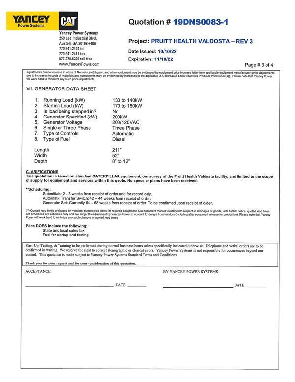
((*) Quoted lead times are based on vendors’ current lead times for required equipment. Due to current market volatility with respect to shortages of goods, until further notice, quoted lead times

Approval of Hazard Mitigation Grant Program (HMGP) Applications Work
Packet: Lift Station & Force Main, River Gauge, Transit, Code Red, Facilities, TIA, SDS, etc. @ LCC
24 October 2022

 
((*) Quoted lead times are based on vendors’ current lead times for required equipment. Due to current market volatility with respect to shortages of goods, until further notice, quoted lead times
bigger PDF