[prev][next] [index to photographs]

2013 07 29 GLPC Packet 011

13 - 15
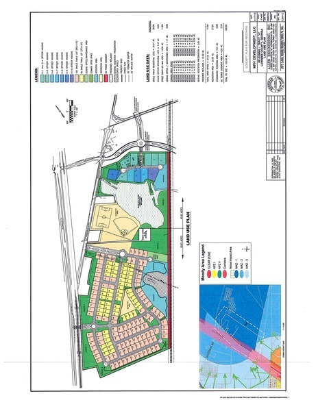
District 1 and 4 - REZ-2013-08 - MFH Tract A
8 July 2013
John S. Quarterman jsq at quarterman.org
 
2013 07 29 GLPC Packet 011
bigger

Last changed: $Date: 2013/08/10 11:26:51 $